

From start to finish, you’ll work one-on-one with a dedicated 3D Architectural Designer—your single point of contact throughout the entire design journey. They’ll help reimagine your layout, guide you in selecting finishes, and seamlessly manage updates along the way. Once your 3D design is finalized, they’ll personally coordinate with your chosen contractor to ensure a smooth handoff and confident start to construction.

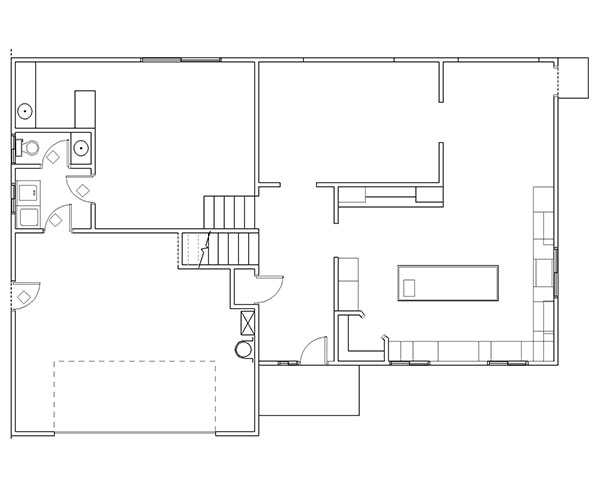
To start off, we'll take your lead on how you want to remodel your home's layout. We then turn your ideas into a standardized set of plans which will later be used by your construction team & more detailed 3D renders.
Building on the layouts, we give you access to a 3D interactive model of your remodeled home. You'll be able to pan around and take a much closer look at the design of your remodeled home.

We'll create multiple angles of your redesigned home in high definition 3D renders; we include every detail from finish materials to furniture. With this, you'll get a complete & accurate visual representation of your redesigned home.

Once the designs are complete, we'll provide you with a list of materials we used in the 3D renderings, where we recommend you find it, and any comments we left during our meetings.
